El Ministerio del Interior ha iniciado el proceso de licitación para la remodelación integral del área de detención del puesto fronterizo de El Tarajal, en Ceuta, con un presupuesto base de 515.261 euros. La obra, cuyo proyecto fue redactado en agosto de 2025 por la arquitecta Rosa María Almirante Vélez, busca actualizar los espacios destinados a la custodia temporal de personas detenidas, incorporando mejoras funcionales, constructivas y tecnológicas según la normativa vigente.
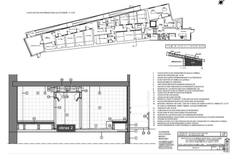
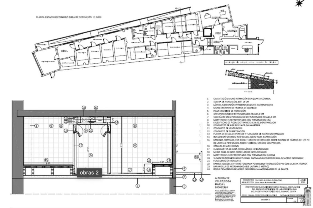
La actuación contempla una reorganización completa del área de detención, centrada en un puesto de control centralizado que contará con sistemas de videovigilancia, interfonía, comunicación interna y control de accesos. Las celdas —individuales, de incomunicados, colectivas y de menores— serán diseñadas con criterios de resistencia, ventilación forzada y eliminación de posibles puntos de anclaje, garantizando la seguridad de los detenidos y del personal.
Entre las mejoras previstas se incluyen la actualización de la señalización de seguridad, la remodelación de los aseos de detenidos, la instalación de nuevos equipamientos de grabación y monitoreo, la adecuación de recorridos accesibles y la creación de un armero de seguridad en un emplazamiento controlado. Asimismo, se incorporarán acabados duraderos, cerramientos homologados, climatización independiente y sistemas de renovación de aire para optimizar las condiciones de higiene y confort.
La Subdirección General de Planificación y Gestión de Infraestructuras y Medios para la Seguridad establece un plazo de ejecución de diez meses desde el inicio de los trabajos. Las empresas interesadas podrán presentar sus ofertas hasta el 10 de diciembre de 2025, mientras que la apertura de las propuestas económicas está prevista para el 11 de diciembre a las 10:00 horas.











